西安西驰电气股份有限公司(证券代码831081),成立于2002年,是一家专业从事电力电子产品研发、制造、销售的高新技术企业。
了解更多- 产品概述
- 技术特点
- 使用条件
- 规格型号
MAXWELL H系列是由西安西驰电气股份有限公司自主研发的一款驱动电机的高压变频装置。我司可为客户提供可靠、高性能、柔性高压电机驱动系统。
电压等级 | 6KV | 10Kv |
功率范围 | 185KW-5MW | 200KW-10MW |
系统拓扑 | 移相变压器+全桥整流+H桥逆变 | |
输出电压 | 0-6KV | 0-10KV |
输出频率 | 0-120Hz | |
冷却方式 | 空气冷却 | |
1.输入电流谐波
采用变压器移相位技术,多脉冲整流,6kv系统30脉冲,10kv系统48脉冲。
满足IEEE519-2014标准。
输入无滤波器。
2.输入功率因数
输入变压器移相技术结合级联单元提供电机需要的无功功率,输入功率因数高达0.96,电机通过高压变频器后,无需无功补偿设备。
3.输出电压波形
模块级联技术,H桥逆变,模块输出叠加形成多电平,输出正弦波,确保电机工作在较佳状态,适应新老电机。
4.整机效率
效率高达97%,对移相变压器进行较优电磁设计,减少损耗。
5.电网适应性
输出电压波动范围-15%-+15%,频率波动-10%-+10%,在波动范围内通过输出注入谐波控制,确保输出额定电压。最低电压-45%可以工作。当电网瞬间掉电,高压变频器将进入瞬间掉电不停机功能,维持电机工作,在系统储能耗尽前电网恢复,系统将继续工作。
6.防雷保护
市电输入、输出、控制电源输入、通信信号具有防雷保护功能。
7.模块化设计
控制系统、电气系统、功率单元、风机系统、检测单元采用模块化设计,高可靠、维护方便、易操作。
8.一体化设计
10KV 1-2MW,功率段内结构尺寸一个设计,10KV 1-2.25MW、10KV 200KW-1MW和6KV 185KW-0.8MW,功率段内结构尺寸一个设计。体积小,节约占地空间。
9.低压软启功能
移相变压器通过低压软启,变压器输出正常电压后,高压侧切换到电网,软启动确保移相变压器在切换到电网时无冲击电流。
10.控制电源
控制系统电源采用模块化设计,供电采用双路冗余供电,一路来自低压,一路来自高压,高可靠性,控制系统内部核心存储芯片,采用超级电容供电,确保系统掉电时,运行数据存储。
11.丰富电机控制方式
根据电机的应用场景,提供VF控制、矢量控制、转矩控制模式(DTC),适应各种电机负载。
12.故障保护
电机过流保护、输出过载保护、输入过压过流保护、移相变压器过热保护、通信故障保护、功率单元故障、输出短路保护、IGBT过流保护、运行门开保护等。
13.丰富的用户接口
具有RS485、模拟量输入、模拟量输出、数字量输入、数字量输出、编码器输入、功率控制、电源输出、高压断路器控制和检测、紧急停机等接口,满足各种应用场景。
14.功率单元设计
独立风道设计,适应工业各种应用场景。光纤控制信号无干扰。模块控制部分采用DSP数字控制。
15.主控系统
采用DSP+FPGA架构,完成电机算法、逻辑控制、故障处理、SVPWM调节、通信、信号处理等功能,精准、快速、可靠完成电机控制。
16.无扰切换技术
高压变频器可以实现同步电机或异步电机软启动,电机从0HZ启动,逐步运行到电网频率50HZ,然后电机从变频状态切换到工频电网,切换过程平稳,对电机无冲击电流,保证电机安全运行。
17.易维护性
采用模块化设计,各个部分都是独立的模块,维护时只需要把相应的模块进行处理,可以在机器正常运行情况下更换或清理通风防尘网。
18.环境适应性强
防护等级IP30;污染等级Ⅲ;
满足-15℃启机,最高温度55℃下可以工作;
存储和运输温度-40℃-+70℃;
整机通过三级公路运输试验;
功率单元、控制系统、检测单元、电气系统等模块通过0.6米跌落试验和振动试验。
功率输入 | |
输入电压 | 电压等级6KV或10KV,电压波动范围在-10%~+10%以内输出额定功率。 在-45%~-10%以内输出功率降额使用。 |
输入频率 | 50Hz,频率波动范围-10%~+10% |
输入电流谐波 | THDI≤4%,满足国际标准IEEE519-2014和国家标准GB/T14549-93电能质量标准 |
输入功率因数 | 最高可达0.96 |
功率输出 | |
输出电压范围 | 0~6KV 或0~10KV |
输出频率 | 0-120Hz |
系统效率 | 最高可达97% |
输出过载 | 负载小于105%可以长时间工作,110%~160%以内反时限保护。 |
输出电流谐波 | THDI≤4%,满足国际标准IEEE519-2014和国家标准GB/T14549-93电能质量标准 |
控制方式 | |
控制方式 | V/F、无速度传感器VC控制、有速度传感器VC控制 |
加减速时间 | 0.1-3600S |
频率分辨率 | 数字设定0.01Hz,模拟设定0.1×设定最高频率 |
频率精度 | 数字设定±0.01%最高频率,模拟设定±0.2%×设定最高频率 |
速度分辨率 | 数字设定0.01Hz,模拟设定0.1×设定最高频率 |
速度精度 | ±0.5% |
速度波动 | ±0.3% |
启动转矩 | 大于120% |
励磁制动 | 制动时间0-600S,起始频率0-50Hz,制动电流0-100%额定电流 |
直流制动 | 制动时间1-600S,起始频率0-30Hz,制动电流0-150%额定电流 |
电压自动调整 | 输入电压在-10%~+10%以内变化时,能自动保持输出电压恒定,额定输出电压波动不大于±3% |
整机参数 | |
冷却方式 | 风冷 |
防护等级 | IP30 |
移相变压器绝缘等级 | Class H(180℃) |
本地操作方式 | 触摸屏 |
辅助电源 | ≥20KVA |
环境适应性 | |
运行环境温度 | 0~+40℃ -15℃可以直接起机,40℃~55℃容量降额使用 |
存储环境温度 | -40℃~+70℃ |
运输环境温度 | -40℃~+70℃ |
相对湿度 | 5%-95%无凝露 |
海拔高度 | 小于1000米 |
安装场所 | 室内安装 |
污染等级 | 污染等级Ⅲ;偶尔存在导电污染物 |
用户接口 | |
继电器型干接点输出 | 6 220VAC/24VDC |
晶体管型干接点输出 | 4 24VDC |
数字量多功能输入 | 8 24VDC |
模拟量输入 | 3 |
模拟量输出 | 2 |
通信接口 | 2 |
高压断路器控制 | 1 |
码盘接口 | 1 |
电源接口 | 380V AC |
MaxWell 6KV系列
产品型号 | 适配 电机功率kW | 额定输 出电流A | 重量 kg | 外形尺寸 mm |
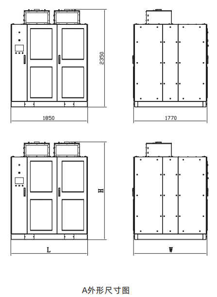
MaxWell.H0185.06 | 185 | 23 | 2030 | 1850*1770*2350 (A) |
MaxWell.H0200.06 | 200 | 25 | 2049 | |
MaxWell.H0220.06 | 220 | 27 | 2073 | |
MaxWell.H0250.06 | 250 | 31 | 2109 | |
MaxWell.H0280.06 | 280 | 34 | 2145 | |
MaxWell.H0315.06 | 315 | 38 | 2187 | |
MaxWell.H0355.06 | 355 | 43 | 2236 | |
MaxWell.H0400.06 | 400 | 48 | 2363 | |
MaxWell.H0450.06 | 450 | 54 | 2385 | |
MaxWell.H0500.06 | 500 | 60 | 2410 | |
MaxWell.H0560.06 | 560 | 67 | 2479 | |
MaxWell.H0630.06 | 630 | 75 | 2609 | |
MaxWell.H0710.06 | 710 | 85 | 2664 | |
MaxWell.H0800.06 | 800 | 94 | 2773 | |
MaxWell.H0900.06 | 900 | 106 | 2894 | |
MaxWell.H1000.06 | 1000 | 117 | 3060 | |
MaxWell.H1120.06 | 1120 | 131 | 3268 | |
MaxWell.H1250.06 | 1250 | 144 | 3502 | |
MaxWell.H1400.06 | 1400 | 161 | 3577 | |
备注:参考6KV三相异步电机6KV/50HZ,实际选型需要根据电机确定。 | ||||
MaxWell 10KV系列
产品型号 | 适配电机 功率kW | 额定输 出电流A | 重量 kg | 外形尺寸 mm |
MaxWell.H0220.10 | 220 | 17 | 2163 | 1850*1770*2350 (A) |
MaxWell.H0250.10 | 250 | 19 | 2202 | |
MaxWell.H0280.10 | 280 | 21 | 2241 | |
MaxWell.H0315.10 | 315 | 24 | 2286 | |
MaxWell.H0355.10 | 355 | 26 | 2338 | |
MaxWell.H0400.10 | 400 | 29 | 2475 | |
MaxWell.H0450.10 | 450 | 33 | 2505 | |
MaxWell.H0500.10 | 500 | 36 | 2526 | |
MaxWell.H0560.10 | 560 | 40 | 2600 | |
MaxWell.H0630.10 | 630 | 45 | 2740 | |
MaxWell.H0710.10 | 710 | 51 | 2799 | |
MaxWell.H0800.10 | 800 | 56 | 2916 | |
MaxWell.H0900.10 | 900 | 63 | 3046 | |
MaxWell.H1000.10 | 1000 | 70 | 3225 | |
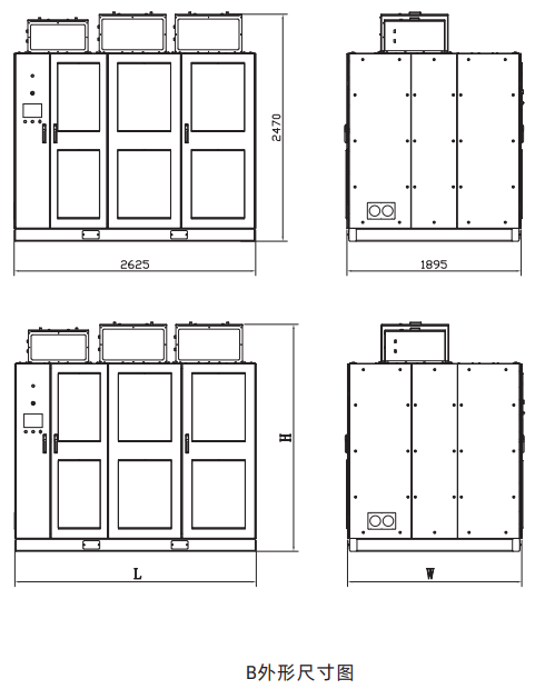
MaxWell.H1120.10 | 1120 | 79 | 3848 | 2650*1900*2490 (B) |
MaxWell.H1250.10 | 1250 | 87 | 4100 | |
MaxWell.H1400.10 | 1400 | 97 | 4180 | |
MaxWell.H1600.10 | 1600 | 110 | 4610 | |
MaxWell.H1800.10 | 1800 | 124 | 4990 | |
MaxWell.H2000.10 | 2000 | 138 | 5180 | |
MaxWell.H2250.10 | 2250 | 154 | 5573 | |
备注:参考10KV三相异步电机10KV/50HZ,实际选型需要根据电机确定。 | ||||

















